Associated Builders & Contractors
Home
About Us
Construction Projects
Property Development
Contact Us
Property Development
Pinggiran Pengkalan Bayu
Overview
Floor Plans
Specification
Location Map
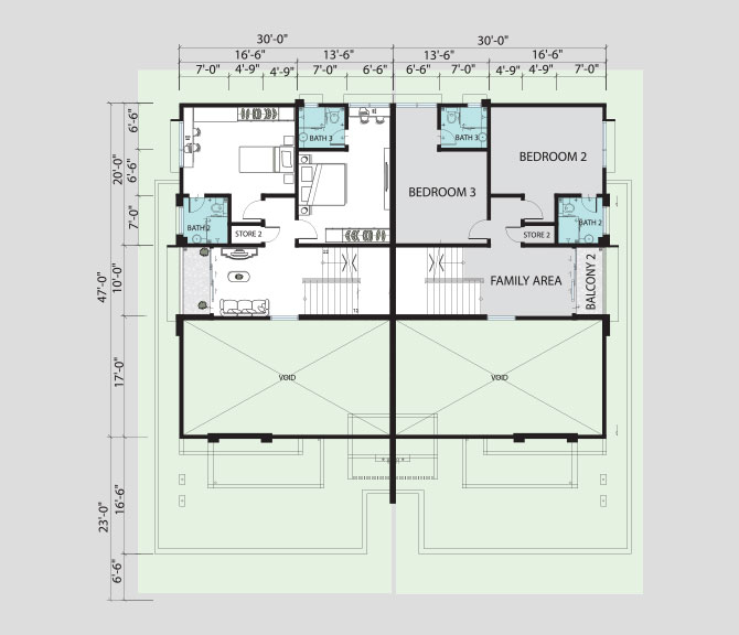
Floor Plans
Ground Floor
First Floor
Second Floor